高州市中山路112號商場招租項目招租公告
高州市中山路112號商場招租項目招租公告
茂名市匯智招標代理有限公司受高州市商業儲運公司的委托,對高州市中山路112號商場招租項目(項目編號:MMHZ-25GB-018)進行公開招租,歡迎競租人參與競租。
一、招租租賃范圍
招租租賃范圍:高州市中山路112號商場招租項目,競租人可就商場進行競租。
二、租期及競租報價底價
1、租賃期限:5年。從簽訂租賃合同開始計起,前期設15天裝修期,裝修期在租賃期內,免租金。
2、招租方式:
|
招租方式的確定 |
具體時間安排 |
暫定日期 |
||
|
方式一 |
公告期滿,如征集到不少于2個(含2個)符合條件的意向方 |
現場增價競租 |
2025年12月25日09時00分(北京時間) |
|
|
方式二 |
公告期滿,如只征集到一個符合條件的意向方 |
按起租價與意向方報價孰高原則成交 |
2025年12月25日09時00分(北京時間) |
|
|
方式三 |
公告期滿,如沒有征集到符合條件的意向方 |
不變更信息公告內容,按照不少于5個工作日為一個周期,延長一個公告期征集意向承租方 |
2026年01月05日09時00分(北京時間) |
|
3、招租面積、競租底價及方式:
|
高州市中山路112號商場招租項目明細表 |
||||||
|
序號 |
招租標的 |
位置 |
面積 |
月租金底價 |
年租金 (元/年) |
租期(年) |
|
1 |
高州市中山路112號商場 |
高州市中山路112號 |
1949.30 |
130273.00 |
1563276.00 |
5 |
|
合計 |
1949.30 |
|
1563276.00 |
|
||
|
面積為大約數,實際招租面積以現狀為準。
|
||||||
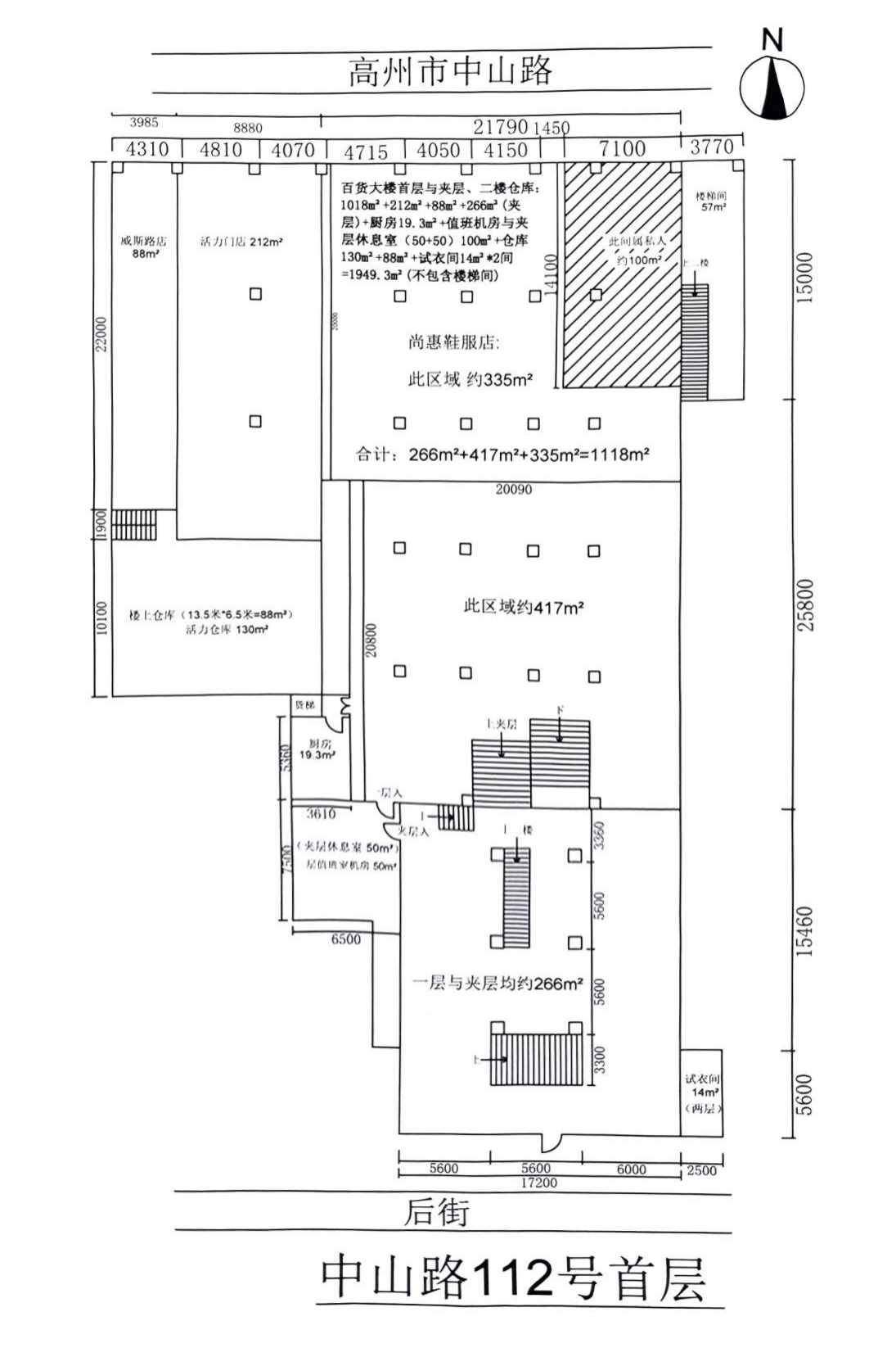
商場平面圖如下:
競租方式:采用明價公開舉牌競價的方式對商場月租金進行競價,采取“增價式”的方式進行,遵循“價格優先、時間優先、價高者得”的原則,同等價位條件下以競價主持人確認的應價為準,加價幅度 :每舉牌一次的加價幅度為在月租金底價的基礎上加1000元/月,在不低于月租金底價基礎上按照價高者得的原則確定競得人。
三、競租人資格
1、競租人已登記報名并獲取本項目招租文件并具有獨立承擔民事責任能力企業法人、個體經商戶、自然人;
2、競租人僅限于經營餐飲業、土特產、日用百貨業、副食品、成衣、醫藥器械,但不準經營化學物品、易燃易爆品和政策不允許經營的業務。
3、本項目不接受聯合體競租。
四、競租報名
競租人請于2025年12月05日08時30分至2025年12月11日17時30分前(北京時間,節假日除外)到茂名市匯智招標代理有限公司(高州市潘州街道謝村居委會桂圓東路坡耀村三、五小組農民留用地B地塊30號(鯤鵬大廈A)6樓)報名并購買招租文件,招租文件售價300元(人民幣),售后不退。領購招租文件時需攜帶的材料:
(1)企業法人(或個體經營)營業執照復印件加蓋公章(原件備查);法定代表人(負責人)身份證明書原件及法人身份證復印件加蓋公章(原件備查);法人(負責人)授權委托書原件及被授權人身份證復印件加蓋公章(如有,原件備查)。
(2)自然人競租的提供身份證復印件(原件備查)
五、競租保證金
競租前(2025年12月25日09時00分前繳交)競租人必須按招租要求交納競租保證金:156327.00元(人民幣壹拾伍萬陸仟叁佰貳拾柒元整)。
六、競租文件的遞交
1、競租文件的遞交時間:以招租公告具體安排時間為準
2、競租文件遞交截止時間:以招租公告具體安排時間為準
3、遞交地點:高州市潘州街道謝村居委會桂圓東路坡耀村三、五小組農民留用地B地塊30號(鯤鵬大廈A)6樓
4、遞交時間:以招租公告具體安排時間為準
七、聯系方式
招租代理機構聯系人:冼小姐
電話:0668-6623366
聯系地址:高州市潘州街道謝村居委會桂圓東路坡耀村三、五小組農民留用地B地塊30號(鯤鵬大廈A)6樓
招租人:高州市商業儲運公司
聯系人:郭晶
聯系電話:18211345704
八、公告期限、發布公告的媒介:
公告期限:自本公告發布之日起5個工作日。
發布公告的媒介:茂名市匯智招標代理有限公司網(http://m.www-kj886.com)
茂名市匯智招標代理有限公司
日期:2025年12月04日
- 上一篇:沒有啦
- 下一篇:長坡鎮銀坑村人居環境整治及提升項目(MMHZ-25GX-01 2025/11/29
